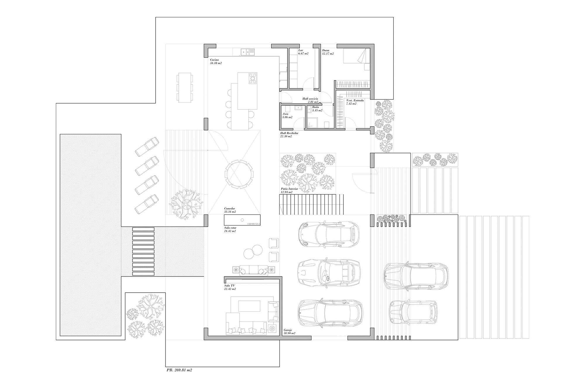
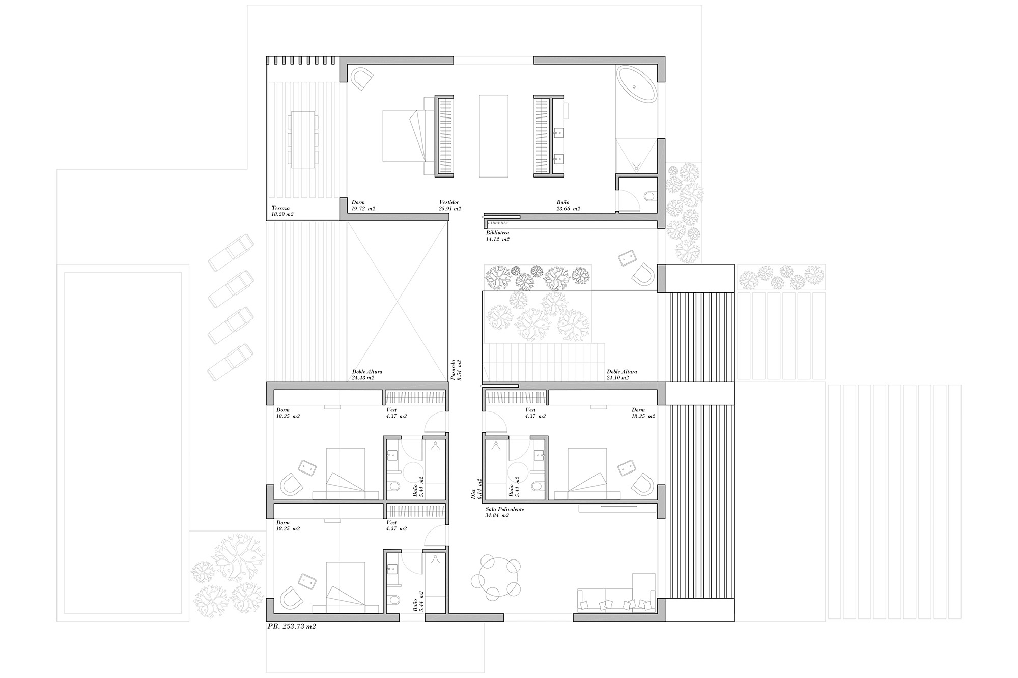
Casa Sopelana

Vivienda de más de 500m² en la que la iluminación natural y como accede al interior de la casa ha sido una de las fases fundamentales del diseño. Piscina que confluye con la casa en la zona de salón y estar para lograr que el reflejo de luz sobre la lámina de agua se convierta en una textura viva y cambiante en todo momento en el interior de la vivienda. Espacios a doble altura, patios, pasarela de comunicación entre la zona de adultos y la zona infantil, espacio multiusos (de juego o estudio) para los pequeños de la casa, zona de garaje abierta mediante cristal a la casa. Mil y un detalles pensados y recreados para diseñar una casa a medida de sus futuros moradores.

Casa Sopelana

Vivienda de más de 500m² en la que la iluminación natural y como accede al interior de la casa ha sido una de las fases fundamentales del diseño. Piscina que confluye con la casa en la zona de salón y estar para lograr que el reflejo de luz sobre la lámina de agua se convierta en una textura viva y cambiante en todo momento en el interior de la vivienda. Espacios a doble altura, patios, pasarela de comunicación entre la zona de adultos y la zona infantil, espacio multiusos (de juego o estudio) para los pequeños de la casa, zona de garaje abierta mediante cristal a la casa. Mil y un detalles pensados y recreados para diseñar una casa a medida de sus futuros moradores.

Vivienda industrializada diseñada por EXarchitects en una de las zonas más lujosas de Madrid.

 

Vivienda de más de 500m² en la que la iluminación natural y como accede al interior de la casa ha sido una de las fases fundamentales del diseño. Piscina que confluye con la casa en la zona de salón y estar para lograr que el reflejo de luz sobre la lámina de agua se convierta en una textura viva y cambiante en todo momento en el interior de la vivienda.

Espacios a doble altura, patios, pasarela de comunicación entre la zona de adultos y la zona infantil, espacio multiusos (de juego o estudio) para los pequeños de la casa, zona de garaje abierta mediante cristal a la casa. Mil y un detalles pensados y recreados para diseñar una casa a medida de sus futuros moradores.

Construida en Hormigón prefabricado blanco y de primera calidad y con grandes espacios acristalados y las más altas calidades.

Infografías del proyecto:

Planimetría:

 

Datos del proyecto

Título del proyecto: Casa Sopelana
Proyecto: EXarchitects
Estado: Anteproyecto
Año: 2023-XX
Constructora: : Ecotech House.
Ubicación: Aravaca (Madrid)
Tipología: Vivienda unifamiliar industrializada
Infografías: EXarchitects

X
Threads
Facebook
LinkedIn
Pinterest
Telegram
WhatsApp