Complejo residencial de viviendas unifamiliares en Mojácar

Anteproyecto residencial en Mojácar formado por viviendas pareadas contemporáneas. Un diseño flexible y sostenible de EXarchitects que se adapta a distintas zonas de expansión del municipio, combinando vistas al mar, eficiencia y arquitectura mediterránea moderna.

Complejo residencial de viviendas unifamiliares en Mojácar

Anteproyecto residencial en Mojácar formado por viviendas pareadas contemporáneas. Un diseño flexible y sostenible de EXarchitects que se adapta a distintas zonas de expansión del municipio, combinando vistas al mar, eficiencia y arquitectura mediterránea moderna.

En EXarchitects, estudio de arquitectura en Madrid y Almería, presentamos un nuevo anteproyecto residencial en Mojácar, compuesto por viviendas unifamliares contemporáneas diseñadas para integrarse en las nuevas zonas de expansión del municipio.

El proyecto nace de un modelo arquitectónico flexible y sostenible, pensado para aprovechar la orientación, la luz y las vistas al Mediterráneo, manteniendo la identidad visual que caracteriza a nuestro equipo de arquitectos: líneas puras, volúmenes blancos, materiales naturales y vegetación integrada.

Vista general del conjunto residencial de viviendas pareadas en Mojácar, diseño contemporáneo de EXarchitects.

Un conjunto residencial diseñado por arquitectos especializados en Mojácar y costa Mediterránea

Este complejo se plantea como una propuesta modular, replicable y adaptable a diferentes áreas residenciales de Mojácar —como Macenas, Marina de la Torre o El Cantal— manteniendo un equilibrio entre privacidad, luz natural y conexión con el paisaje.
Nuestro estudio de arquitectura desarrolla soluciones personalizadas que combinan diseño contemporáneo y eficiencia, creando espacios únicos adaptados al entorno mediterráneo.

Valor añadido de EXarchitects

El crecimiento urbanístico de Mojácar y la demanda de segundas residencias de alto nivel requieren un modelo residencial versátil y eficiente.

Este anteproyecto propone un modelo base escalable, ideal para el desarrollo de conjuntos residenciales modernos en la Costa de Almería, combinando diseño, confort y sostenibilidad.

Cada vivienda se adapta al estilo de vida de sus propietarios, manteniendo la coherencia del conjunto y ofreciendo múltiples opciones de personalización en distribución, acabados y orientación.

Vistas, privacidad e integración paisajística

Aunque todas las parcelas comparten la misma cota y orientación, el diseño garantiza privacidad entre viviendas mediante retranqueos, celosías y vegetación.
Los ventanales y terrazas se abren hacia el paisaje y la luz mediterránea, potenciando las vistas y la sensación de amplitud.
La arquitectura se funde con el entorno, respetando la identidad visual de Mojácar.

Diseño contemporáneo y armónico

El conjunto se define por un lenguaje arquitectónico elegante y homogéneo, donde cada unidad mantiene su propia identidad dentro de una composición equilibrada.
Líneas limpias, piedra natural, pérgolas de madera y cubiertas ajardinadas reflejan una estética mediterránea moderna, en sintonía con el entorno y con las tendencias actuales en arquitectura residencial.

Calidad constructiva y eficiencia

El proyecto apuesta por soluciones técnicas avanzadas y materiales sostenibles, garantizando eficiencia energética, confort térmico y durabilidad.
El sistema constructivo modular permite una ejecución controlada y optimiza los recursos, asegurando los estándares de calidad y precisión característicos de EXarchitects.

Vista general del conjunto residencial de viviendas pareadas en Mojácar, diseño contemporáneo de EXarchitects.
Vista general del conjunto residencial de viviendas pareadas en Mojácar, diseño contemporáneo de EXarchitects.

Adaptación a la normativa y eficiencia

Este anteproyecto ha sido desarrollado cumpliendo estrictamente la normativa urbanística vigente en Mojácar y ajustando el diseño a las condiciones específicas de la parcela (pendiente, orientación, accesos). Se priorizan criterios de eficiencia energética, orientación sur, ventilación cruzada, y materiales sostenibles para garantizar el máximo confort y reducir la huella ambiental.
Conjunto residencial contemporáneo en Mojácar (Almería) con viviendas pareadas de líneas blancas, vegetación integrada y vistas al Mediterráneo, diseñado por EXarchitects.
Conjunto residencial contemporáneo en Mojácar (Almería) con viviendas pareadas de líneas blancas, vegetación integrada y vistas al Mediterráneo, diseñado por EXarchitects.

Propuestas adaptadas a cada propietario

El conjunto combina volúmenes blancos suspendidos, muros revestidos en piedra natural y cubiertas ajardinadas, evocando el paisaje de Mojácar sin renunciar a la modernidad.
La vegetación trepadora y los materiales naturales aportan frescor y sombra, integrando cada vivienda en su entorno. La arquitectura se convierte así en parte del paisaje, dialogando con el mar y la montaña.

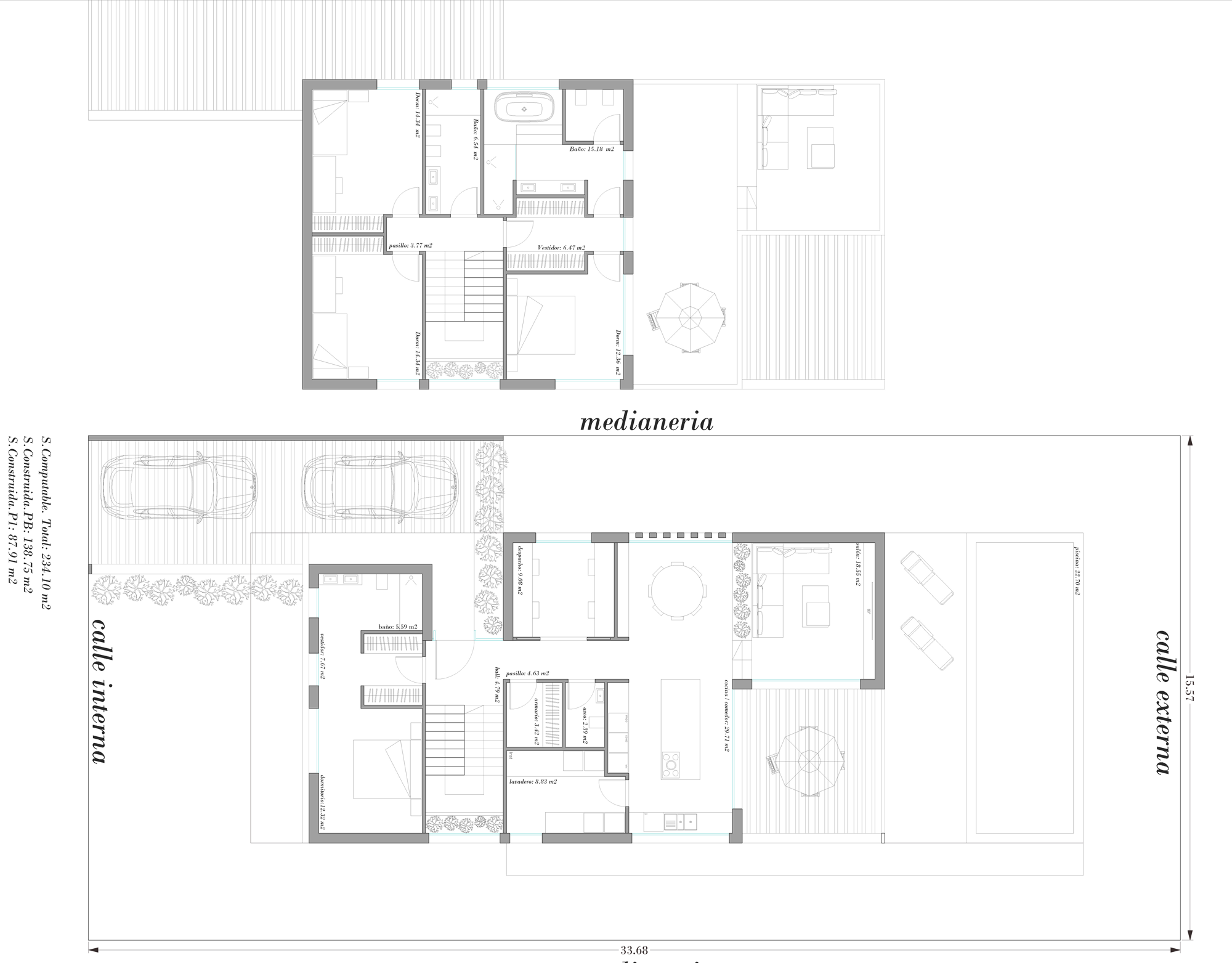
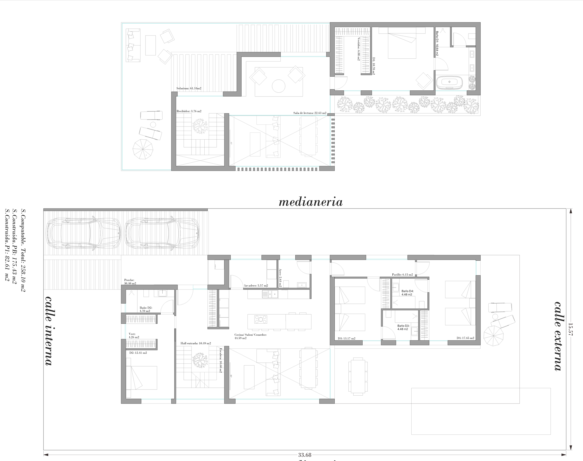
Cada vivienda se articula en dos niveles:

  • Planta baja, con espacios abiertos que se funden con el jardín y la piscina privada, creando una relación directa con el exterior.
  • Planta superior, donde se ubican las zonas privadas, con terrazas panorámicas orientadas al mar y una cuidada integración de celosías y pérgolas de madera que filtran la luz y aportan carácter.

Las viviendas comparten un diseño eficiente, sostenible y adaptable, tanto para primera como para segunda residencia, optimizando recursos y maximizando el confort.

Ficha técnica

Nombre proyecto: Mojacar 02
Proyecto: EXarchitects
Ubicación: Mojácar, Almería
Estado: Anteproyecto –  Propuesta teórica
Cliente: AGTJ 2025
Tipología: Vivienda unifamiliar
Año: 2025 – XX
Infografías: EXarchitects

Infografías y visualización

El anteproyecto incluye infografías 3D realistas desarrolladas por nuestro equipo, que muestran la implantación del conjunto residencial y su integración con el paisaje.
Estas visualizaciones facilitan la toma de decisiones y la personalización del diseño antes de su ejecución.

Arquitectura en Mojácar con sello EXarchitects

En EXarchitects, transformamos el concepto de vivienda unifamiliar en Mojácar con proyectos exclusivos, modernos y totalmente adaptados a las necesidades de cada cliente y a la singularidad de cada parcela. Apostamos por la arquitectura de vanguardia, la eficiencia energética y la personalización total, integrando innovación, sostenibilidad y el máximo confort en cada diseño.

Si buscas una casa a medida en Mojácar, única y diferente, te invitamos a descubrir el futuro de la arquitectura residencial de la mano de EXarchitects. Creamos viviendas que destacan por su calidad, funcionalidad y diseño exclusivo.

 

Enlaces relacionados

Vivienda unifamiliar Mojácar 01
Blog: Mojácar, tradición, modernidad y las mejores zonas para tu segunda residencia

X
Threads
Facebook
LinkedIn
Pinterest
Telegram
WhatsApp