Cotos de Monterrey 1

Starting from a plot with steep topography and spectacular views of the Sierra de Madrid, the house is designed to adapt to the slope—resting on it—and to use these views as the leitmotif for the programmatic organization of the project. The result is a highly functional home, with a carefully considered aesthetic that blends harmoniously into its surroundings.

Cotos de Monterrey 1

Starting from a plot with steep topography and spectacular views of the Sierra de Madrid, the house is designed to adapt to the slope—resting on it—and to use these views as the leitmotif for the programmatic organization of the project. The result is a highly functional home, with a carefully considered aesthetic that blends harmoniously into its surroundings.
Industrialized home designed by EXarchitects for Ecotech House

 
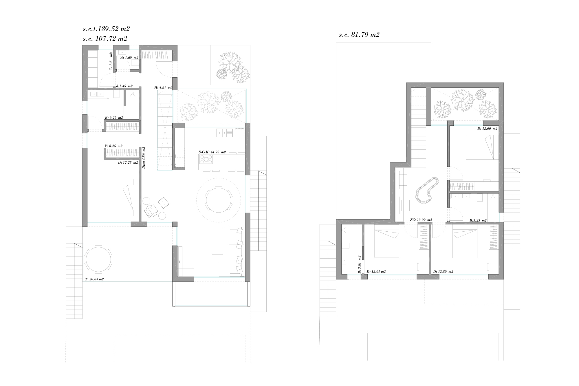
Set on a steeply sloped plot with spectacular views of the Sierra de Madrid, this home is designed to adapt to the terrain—resting on the slope—and to use the views as the leitmotif for the programmatic layout. The result is a highly functional residence with a carefully thought-out aesthetic, fully integrated into its natural surroundings. The layout features a ground floor with the main daytime living areas and an adult zone that includes a suite with walk-in closet and full bathroom. The lower floor (-1) functions as a private “apartment” or exclusive space for the younger members of the household. To make the most of the partially buried lower level, a patio was included to bring in natural light and also serve as a transitional space that articulates the main entrance. A dual material strategy combines prefabricated concrete panels with natural stone, adding material warmth and balance to the design. Project visualizations: Project plans:

Project Details

Project title: Cotos de Monterrey 1 Architecture: EXarchitects Status: Preliminary design phase Year: 2023 Client: Ecotech House Construction: Ecotech House Location: Cotos de Monterrey (Madrid) Type: Industrialized single-family home Visualizations: EXarchitects
X
Threads
Facebook
LinkedIn
Pinterest
Telegram
WhatsApp