Descubre Las Lomas II, un proyecto pionero en Boadilla del Monte, que redefine la arquitectura moderna. Esta vivienda industrializada combina diseño paramétrico y fabricación digital, ofreciendo una construcción eficiente y personalizada.

Diseño paramétrico: eficiencia y estilo
Mediante el uso de diseño paramétrico, cada detalle de Las Lomas II está optimizado para ofrecer la máxima eficiencia y adaptabilidad. Este enfoque permite personalizar la vivienda según las necesidades específicas del cliente, asegurando un hogar único y funcional.
Valor añadido de EXarchitects
Propuestas personalizadas
Cada vivienda se diseña adaptándose a las particularidades de la parcela y a las necesidades específicas del cliente.
Optimización de vistas, privacidad e integración paisajística
Aprovechamos al máximo las vistas y garantizamos privacidad, integrando la vivienda de forma natural en el entorno.
Diseño flexible y contemporáneo
Proyectos actuales y versátiles, alineados con las tendencias y demandas de la Costa de Almería.
Soluciones técnicas y constructivas de alta calidad
Empleamos materiales y sistemas constructivos avanzados para asegurar eficiencia, durabilidad y sostenibilidad.
Sostenibilidad y eficiencia energética
Las Lomas II está diseñada con un fuerte enfoque en la sostenibilidad. Utilizando materiales de alta calidad y técnicas de construcción avanzadas, la vivienda garantiza un rendimiento energético superior, reduciendo el impacto ambiental y los costos a largo plazo.


Opciones de Diseño
Proyecto de gran complejidad, dado el programa, dimensiones y topografía de la parcela. Que junto al resto de inputs habituales de este tipo de proyectos nos ha llevado a plantear distintas versiones de este (todo en ello en fase anteproyecto, pero con una proyecto en misión completa previamente cerrado). A pesar de la diferenciación estética entre ellas, todas comparten programa y diversas premisas básicas de proyecto.
Opción 01. VERSIÓN PLANTAS “con giro”
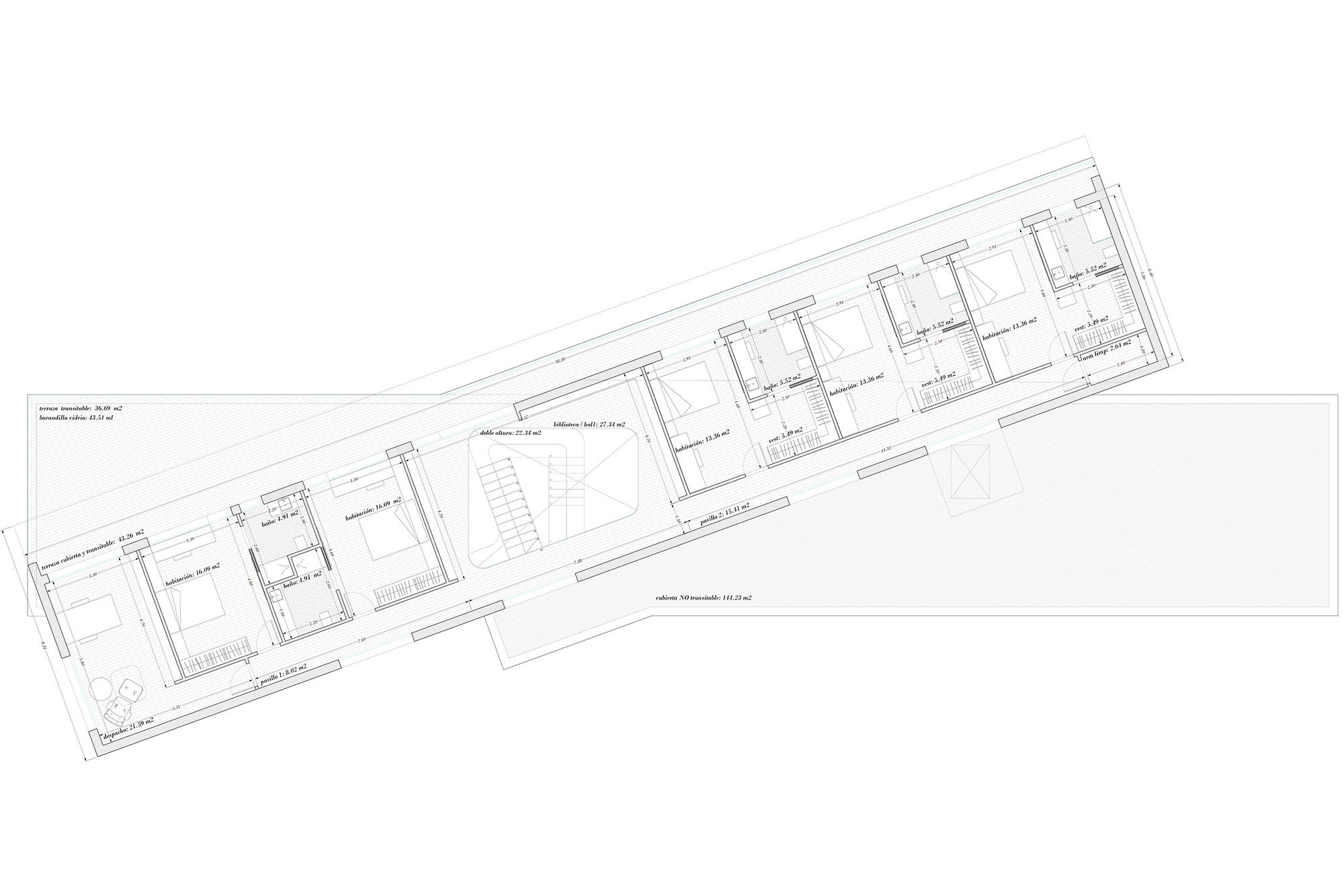
Dada la topografía y la premisa de tener el contacto con el terreno apoyando sobre el mismo, y minimizar la cantidad de cimentación y coste “enterrado” posible, se plantea una vivienda alargada, con programa superpuesto en planta superior, pero en este caso de cara a optimizar las vistas y generar terrazas cubiertas en la planta inferior, se plantea el giro de la planta superior generando galerías y terrazas en las plantas superiores e inferiores. Se plantean dentro de esta opción distintas versiones consensuadas con los clientes; con sótano / garaje, con garaje en planta baja.
Infografías opción con sótano.
Infografías opción sin sótano.
Dentro de esta versión, se ha trabajado en una escala menor para centrarnos en detalles de materiales como materiales exteriores e interiores.
Infografías opción con persianas.
Y dada la complejidad que plantea el giro de las plantas a nivel interno, se plantean diversas opciones de escalera interior (seguimos en fase de anteproyecto…),
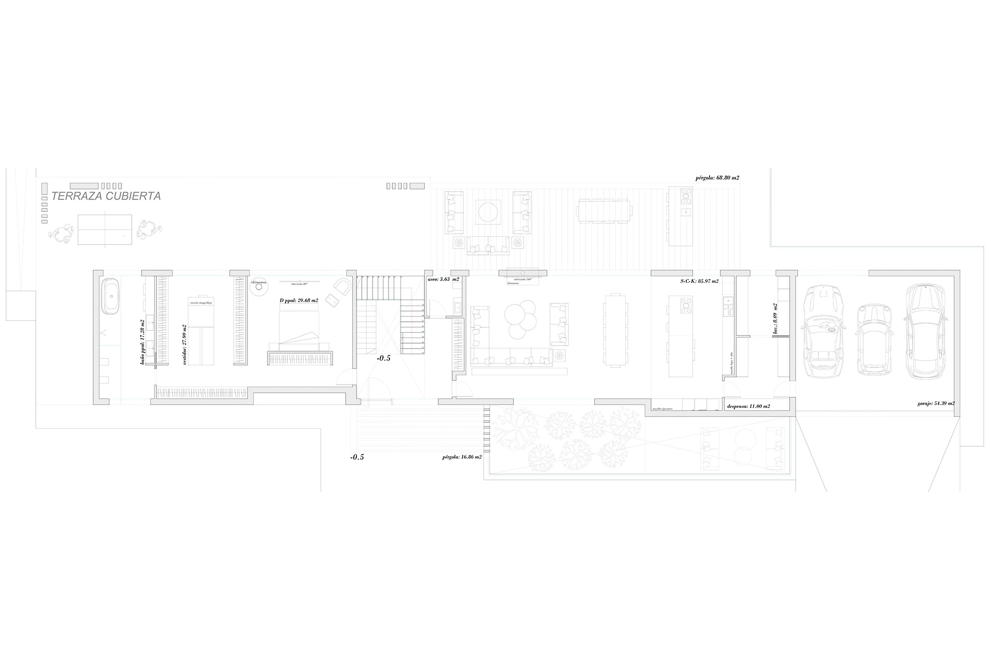
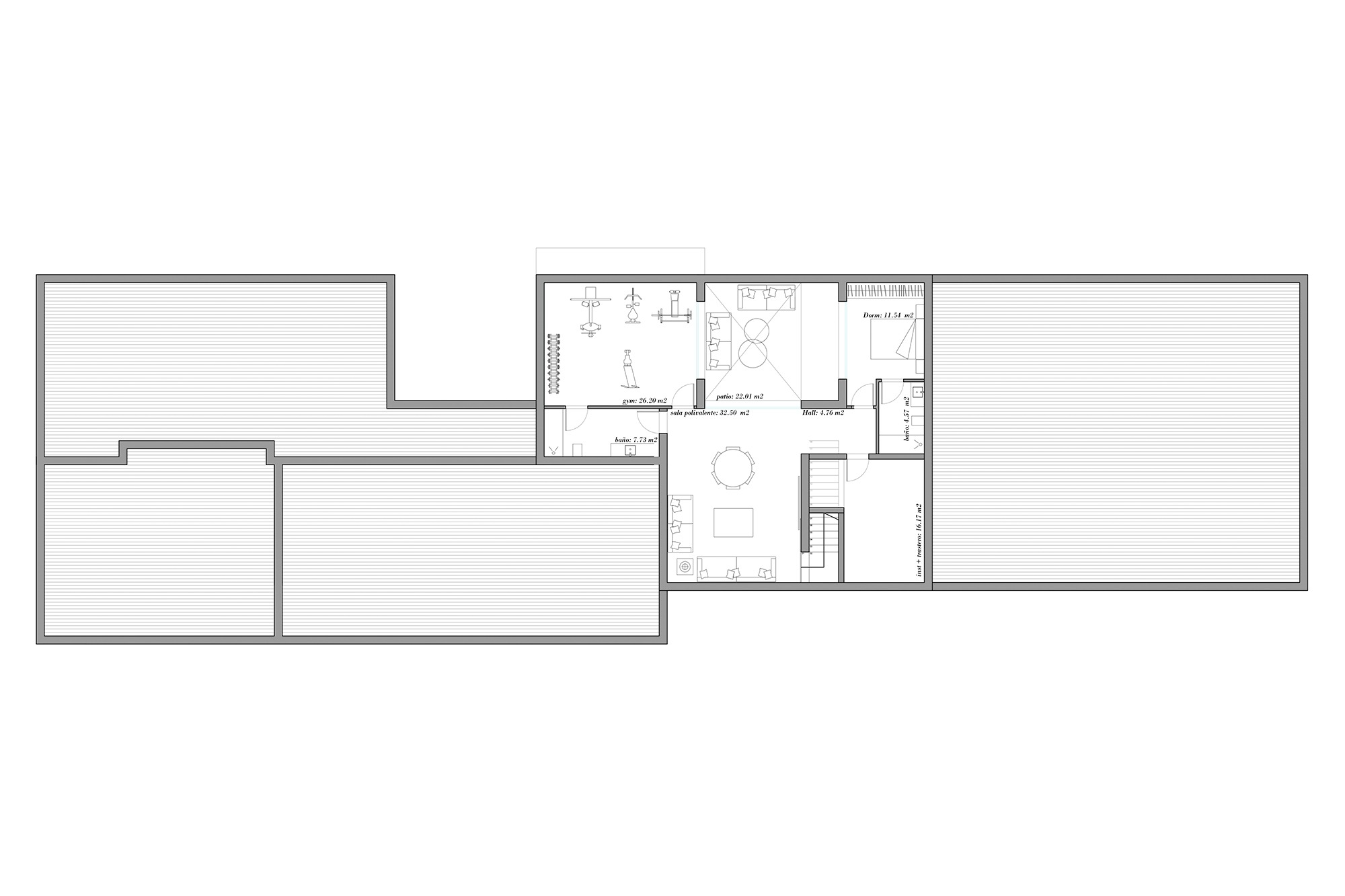
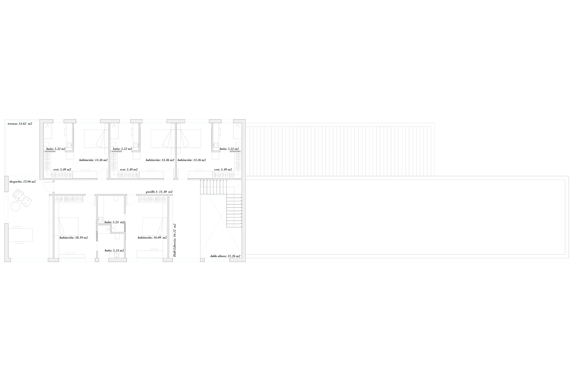
De cada una de las 8 versiones planteadas existen planimetrías así como infografías, que resumimos en las siguientes plantas y alzados.
Planimetría Opción 01
Opción 02. VERSIÓN 1 PLANTAS “sin giro”
Opción con vivienda en dos plantas que respeta el programa original pero que optimiza los espacios de distribución y elimina galerías de paso exteriores así como algunas terrazas de la parte inferior.
Opción 03. VERSIÓN 2 PLANTAS “sin giro”
Versión de una sola planta + sótano en la cual se organiza todo el programa en una sola planta tomando las premisas aprendidas en las versiones anteriores.


Viviendas industrializadas a medida con EXarchitects
Opciones de diseño adaptadas a ti
Este proyecto cuenta con diversas versiones en fase de anteproyecto, todas con un programa coherente y premisas de calidad, adaptadas a los inputs específicos de cada familia, su estilo de vida y la topografía. En EXarchitects tu casa se adapta a ti, no tú a la casa. Diseñamos espacios únicos, funcionales y de diseño para disfrutar de cada momento, integrados con el paisaje y preparados para el futuro. Descubre cómo podemos crear juntos la vivienda que imaginas.<Ficha técnica
Título del proyecto: Las Lomas II
Proyecto: EXarchitects
Estado: Proyecto Básico
Año: 2024-XX
Constructora: Ecotech House.
Ubicación: Boadilla del Monte (Madrid)
Tipología: Vivienda unifamiliar industrializada
Infografías: EXarchitects