Tanatorio spAFH

De taller a tanatorio: Proyecto de reforma de nave industrial dedicada a la reparación de vehículos para asumir una nueva función de tanatorio de la localidad de Villaviciosa de Odón (Madrid).

Tanatorio spAFH

De taller a tanatorio: Proyecto de reforma de nave industrial dedicada a la reparación de vehículos para asumir una nueva función de tanatorio de la localidad de Villaviciosa de Odón (Madrid).

De taller a Tanatorio: Proyecto de reforma de nave industrial dedicada a la reparación de vehículos para asumir una nueva función de tanatorio de la localidad de Villaviciosa de Odón (Madrid).

 

 

Datos del proyecto

Título del proyecto: Tanatorio spAFH
Proyecto: EXarchitects + Nicolás Gutiérrez Pérez
Producción/Construcción/Magia en general: Fast and Furius Office
Ingeniería: Zoarat Ingenieros (Fernando Gil)
Estado: Ejecutado
Cliente: Funeraria San Sebastián
Tipología: Arquitectura Corporativa
Ubicación: Villaviciosa de Odón (Madrid)
Infografías: EXarchitects
Imágenes del proyecto: ImagenSubliminal (Miguel de Guzman + Rocio Romero)

Proyecto de EXarchitects y Nicolás Gutiérrez Pérez, con la colaboración de Manuel Ocaña y Miguel Molins (Fast and Furious Office) en la ejecución y desarrollo general.

El proyecto ha consistido en la intervención de una nave de uso industrial, situada entre medianeras y dedicada a la reparación de vehículos, que se localiza en el polígono industrial de Villaviciosa de Odón (Madrid). Un contexto a priori ajeno al programa propuesto por la propiedad para su desarrollo, un tanatorio, históricamente relacionado con lugares de culto en los que predomina el sosiego y el recogimiento.

Una de las primeras premisas del proyecto fue el transformar este edificio plenamente industrial en un lugar en el que evadirse de este contexto frenético y dinámico para encontrar un espacio de encuentro y compañía. La nave posibilitaba un trabajo en planta y sección debido a sus proporciones y a su gran altura libre, cuya diafanidad quedaba potenciada por la existencia de tenues claraboyas que introducían la iluminación en la sala, y que sería el germen del nuevo proyecto.

La propuesta se concibe como la interposición de un conjunto de elementos ligeros de transición que, mediante el efecto de la compresión, juega con los espacios para producir efectos atmosféricos y fenomenológicos. Estas nuevas formas arrancan desde un gran zócalo horizontal de tres metros de altura y se proyectan hacia la cubierta en distintas direcciones, adquiriendo una geometría piramidal en cuya cúspide se introduce la luz. Con ello, se genera una nueva topografía suspendida que se adhiere sin producir efectos entre los sustratos preexistentes: la cubierta y el suelo.

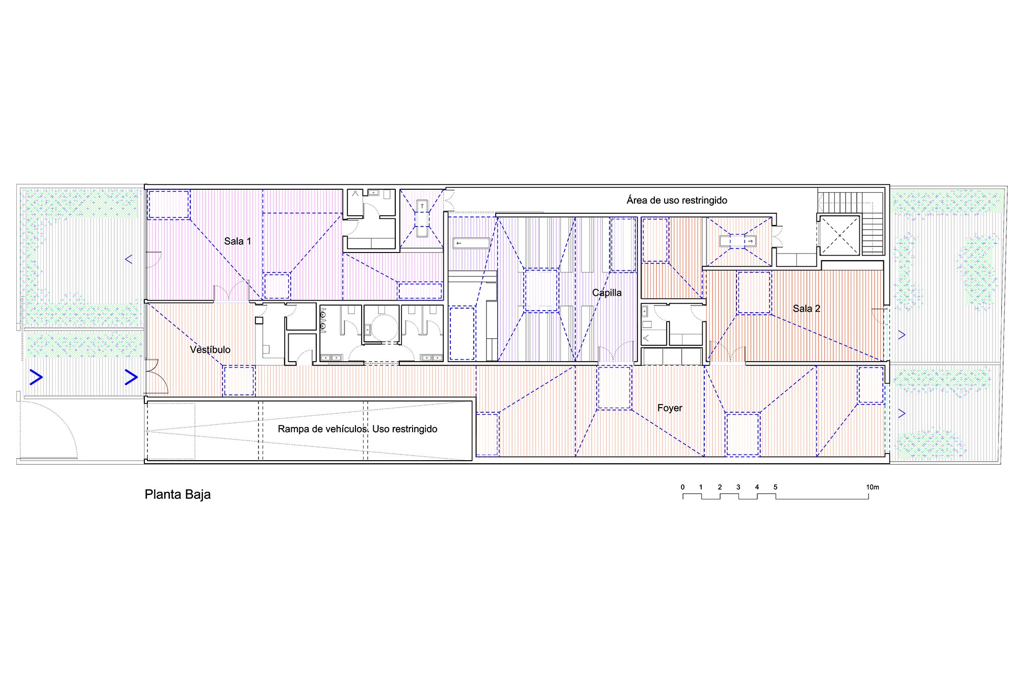
El edificio se articula a través de una zona vestibular que recorre longitudinalmente y por completo la nave concluyendo en un espacio ajardinado —un mirador— que se asoma a los cultivos agrícolas de la población. Este largo foyer permite el acceso a los espacios públicos del tanatorio y se articula mediante la sucesión de lucernarios piramidales concatenados que comprimen y descomprimen el espacio para favorecer el encuentro distendido entre visitantes. A través de este, se accede a los dos velatorios y a la capilla —pieza central del conjunto que se ilumina por tres grandes pirámides— quedando los servicios mortuorios en la planta sótano y las oficinas en la planta primera.

Cada una de las salas de velatorio se estructura a través de dos espacios diferenciados aunque convergentes. Por un lado, una gran zona de encuentro, cubierta por dos grandes pirámides, recibe a los familiares y amigos del fallecido promoviendo la conversación. Desde esta, y de una forma tangencial, se accede al espacio más íntimo del tanatorio que se ilumina por una pirámide de menor tamaño y en el que el visitante puede despedir y observar el féretro, quedando este oculto a la primera mirada del observar cuando accede a la sala. En este caso, la pirámide del túmulo donde descansa el fallecido se invierte y se descuelga en su punto central para producir un ligero contacto, al modo de Noli me Tangere, que busca la evocación de su tránsito.

Finalmente, el proyecto del tanatorio se concluye con el diseño de la casi totalidad de objetos muebles que configuran el espacio y que han permitido, gracias a la confianza depositada por la propiedad, dar forma a un proyecto integral en todos sus aspectos y escalas.

Planimetría del proyecto

Agradecimientos:

En primer lugar, queremos agradecer a la propiedad la confianza depositada en el equipo de proyecto, así como sus valiosas directrices —avaladas por más de 30 años de experiencia en el sector— las cuales han servido para enriquecer las fases de diseño y ejecución del mismo. Ha sido un verdadero lujo encontrar unos clientes como vosotros..

Asimismo, la colaboración de Fast and Fourious ha sido fundamental para hacer magia y conseguir que un proyecto muy ambicioso se ejecutara de forma excepcional en tan solo cuatro meses. Además, la aportación de Manuel y Miguel ha sido determinante a la hora de la toma de decisiones, desarrollando una colaboración muy estrecha, activa y fructífera que ha resultado vital para la ejecución, el diseño y la conclusión de esta obra.

De igual modo, agradecer a la ingeniería su compañía en el desarrollo de todo el proyecto, fundamental para el diseño del conjunto de las instalaciones y para el cumplimiento de la normativa y la legalización de la nueva actividad.

Por último, señalar que este proyecto es resultado de la colaboración profesional, leal y estrecha entre todos los agentes implicados en el proyecto a los cuales agradecemos enormemente su trabajo.

Estado previo de la nave dónde se encuentra el Tanatorio.

X
Threads
Facebook
LinkedIn
Pinterest
Telegram
WhatsApp