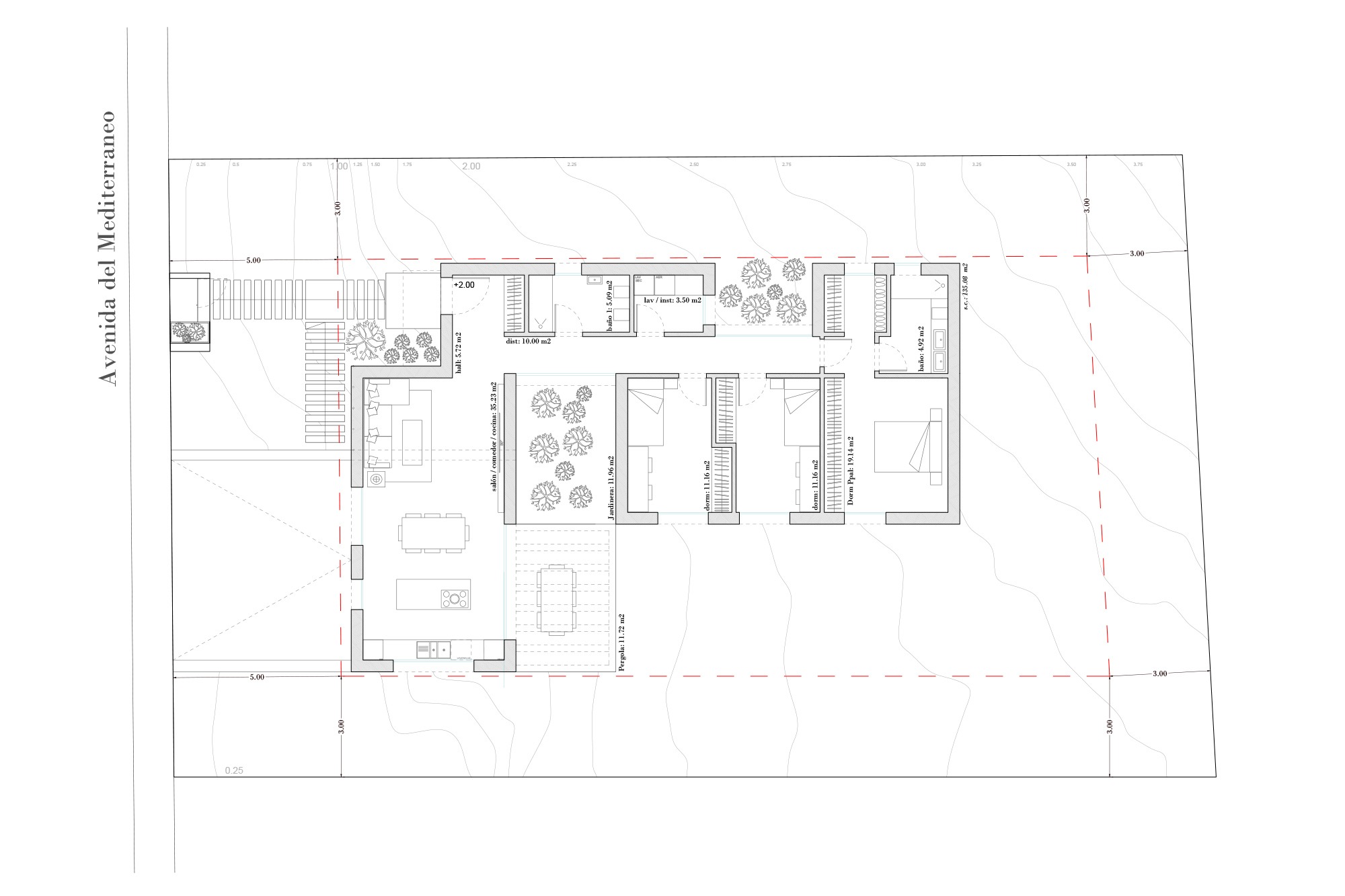
Avenida Mediterráneo

Vivienda unifamiliar de tamaño mediano, diseñado a partir de las premisas del cliente sobre una parcela con una topografía bastante pronunciada que ha sido uno de los puntos fundamentales para tener en cuenta en el proyecto.

Avenida Mediterráneo

Vivienda unifamiliar de tamaño mediano, diseñado a partir de las premisas del cliente sobre una parcela con una topografía bastante pronunciada que ha sido uno de los puntos fundamentales para tener en cuenta en el proyecto.

Vivienda industrializada mediante Steel Frame en El Casar (Guadalajara)

 

Vivienda unifamiliar de tamaño mediano, diseñado a partir de las premisas del cliente sobre una parcela con una topografía bastante pronunciada que ha sido uno de los puntos fundamentales para tener en cuenta en el proyecto.

Se plantea una vivienda en la cual parte de la cimentación y contención propia del terreno sea aprovechada para crear un garaje abierto.

Infografías del proyecto

Datos del proyecto

Título del proyecto: Avenida Mediterráneo
Proyecto: EXarchitects
Estado: Proyecto Básico
Año: 2024-XX
Constructora: : Ecotech House.
Ubicación: El Casar (Guadalajara)
Tipología: Vivienda unifamiliar con garaje
Infografías: EXarchitects

X
Threads
Facebook
LinkedIn
Pinterest
Telegram
WhatsApp