Casa Ciudalcampo

Vivienda de 240m² con una distribución en forma longitudinal en la cual destaca la perfecta división entre espacio diurno / nocturno y a su vez entre zona adultos y niños. Diseñada para una parcela con un fuerte desnivel se ubica de forma paralela a las curvas de nivel, de ahí su distribución lineal y alargada aprovechando para volcar la piscina y los dormitorios hacia la zona con mejores vistas.

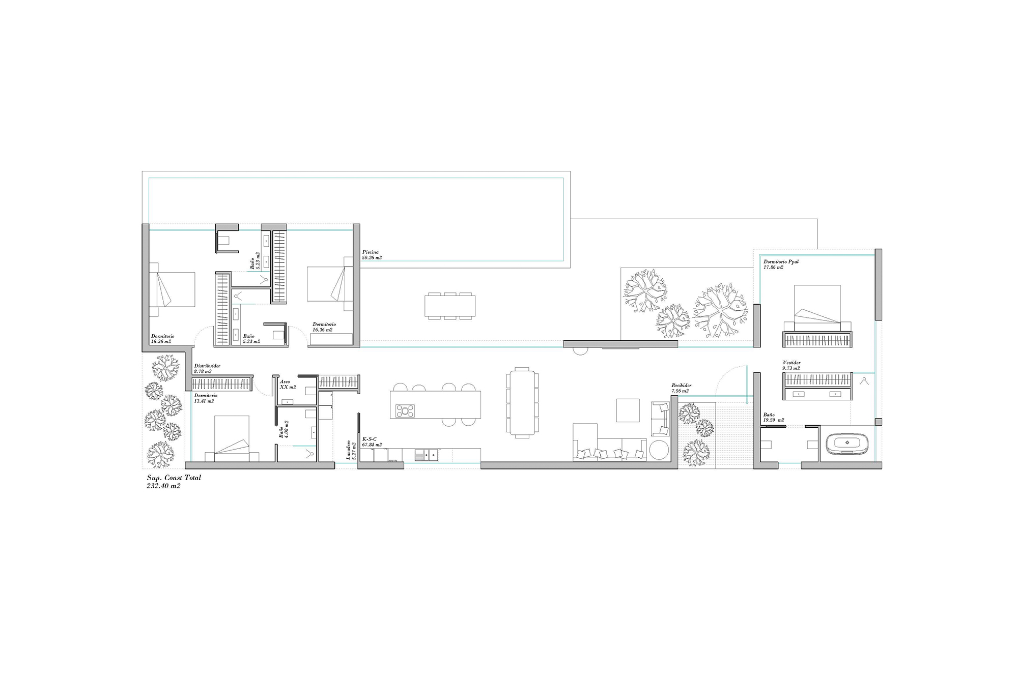
Casa Ciudalcampo

Vivienda de 240m² con una distribución en forma longitudinal en la cual destaca la perfecta división entre espacio diurno / nocturno y a su vez entre zona adultos y niños. Diseñada para una parcela con un fuerte desnivel se ubica de forma paralela a las curvas de nivel, de ahí su distribución lineal y alargada aprovechando para volcar la piscina y los dormitorios hacia la zona con mejores vistas.

Vivienda industrializada diseñada por EXarchitects para la urbanización Ciudalcampo.

 

Vivienda de 240m² con una distribución en forma longitudinal en la cual destaca la perfecta división entre espacio diurno / nocturno y a su vez entre zona adultos y niños. Diseñada para una parcela con un fuerte desnivel se ubica de forma paralela a las curvas de nivel, de ahí su distribución lineal y alargada aprovechando para volcar la piscina y los dormitorios hacia la zona con mejores vistas.

El espacio central y de uso diurno se vuelva hacia la zona de jardín aterrazado y cuenta con una altura mayor que el resto de la casa para dotar al espacio de mayor luminosidad y cualificar el espacio, apoyado a su vez por su gran superficie longitudinal.

Otro bonito detalle es el aprovechamiento de la lamina de agua de la piscina, para dotar los espacios interiores de una textura viva de luces y sombras gracias al rebote de la luz sobre el agua. Construida en Hormigón prefabricado blanco y de primera calidad y con grandes espacios acristalados.

Infografías del proyecto:

Datos del proyecto

Título del proyecto: Casa Ciudalcampo
Proyecto: EXarchitects
Estado: Anteproyecto
Año: 2023-XX
Constructora: : Ecotech House.
Ubicación: Ciudalcampo (Madrid)
Tipología: Vivienda unifamiliar industrializada
Infografías: EXarchitects

X
Threads
Facebook
LinkedIn
Pinterest
Telegram
WhatsApp