Manzana Torrelaguna

Manzana Torrelaguna

Unidad de ejecución compuesto por viviendas industrializada diseñadas por EXarchitects.

 

Desarrollo de dos viviendas tipo para parcelas dentro de una unidad de ejecución en la zona de Torrelaguna (Madrid).

De cara a comercializar las parcelas y para la futura composición de un barrio residencial se plantea una solución modular con dos viviendas tipo que encajen entre si de cara a dar la posibilidad de elección al propietario final. Pudiendo elegir entre vivienda tipo A y tipo B.

Infografías del proyecto:

Construida en Hormigón prefabricado blanco y de primera calidad y con grandes espacios acristalados y las más altas calidades.

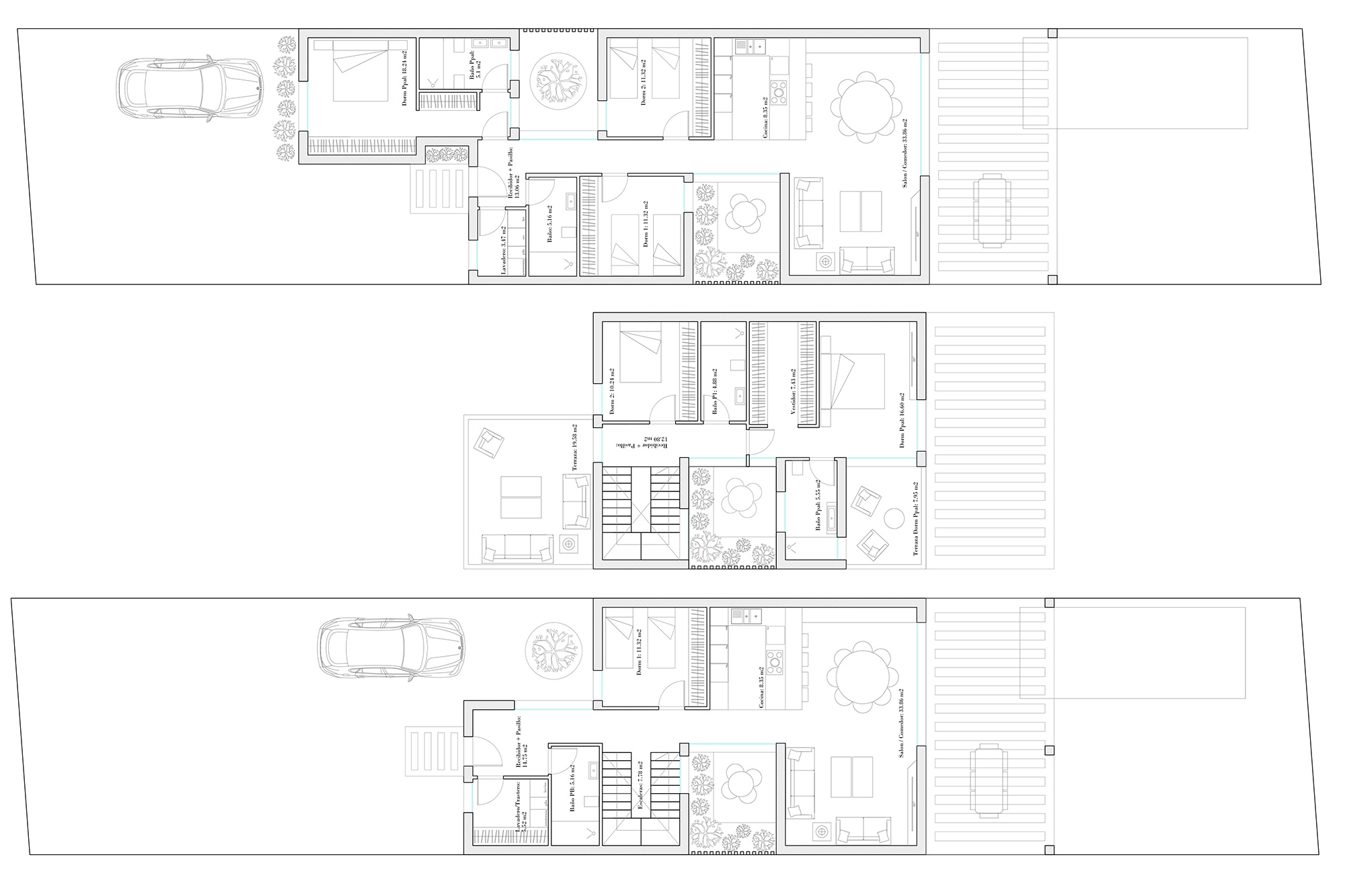
Planimetría:

Datos del proyecto

Título del proyecto: Manzana Torrelaguna
Proyecto: EXarchitects
Estado: Desarrollo Unidad Ejecución
Año: 2023-XX
Constructora: : Ecotech House / Fondo de Inversión.
Ubicación: Torrelaguna (Madrid)
Tipología: Vivienda unifamiliar industrializada
Infografías: EXarchitects

X
Threads
Facebook
LinkedIn
Pinterest
Telegram
WhatsApp