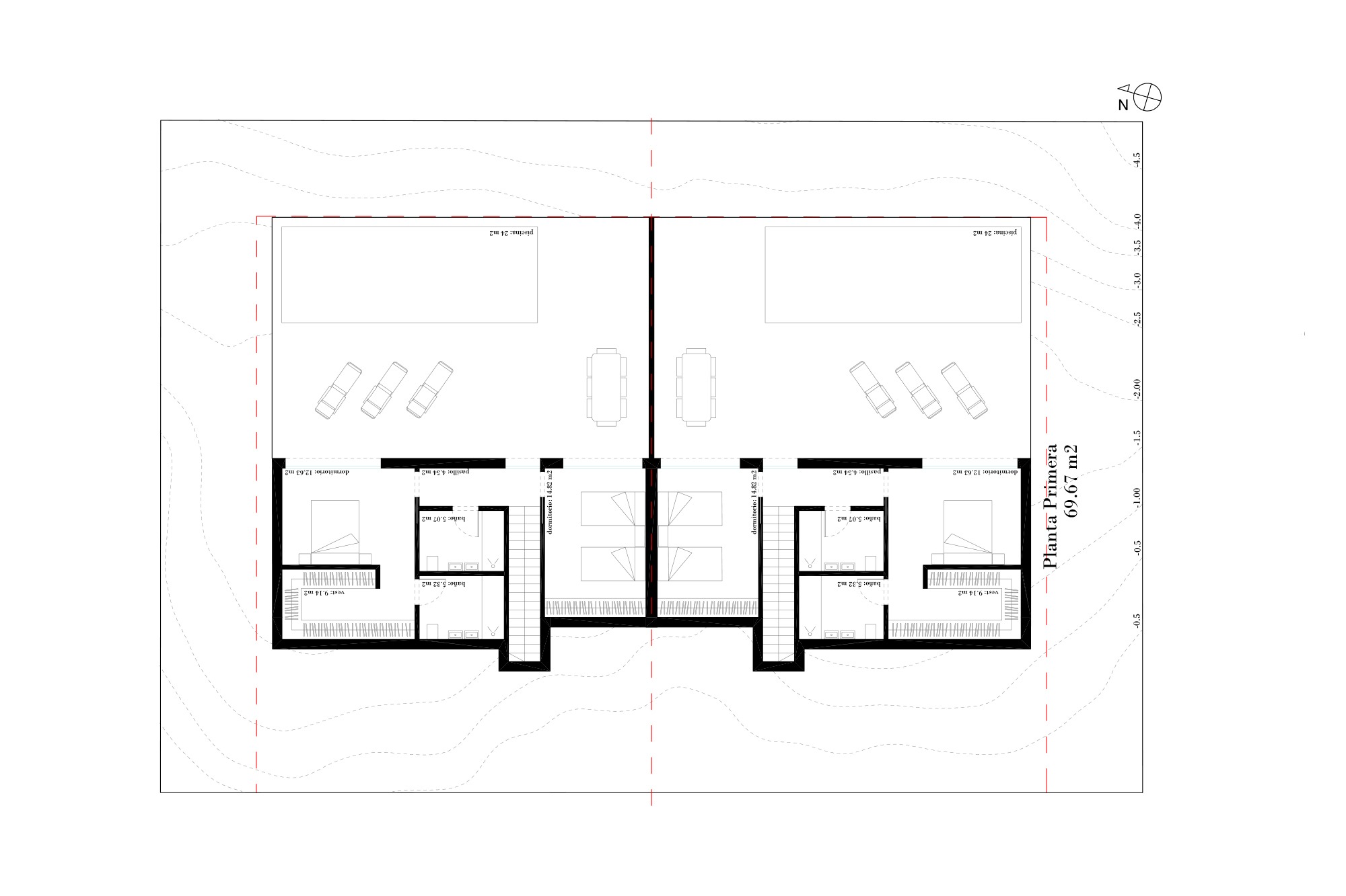
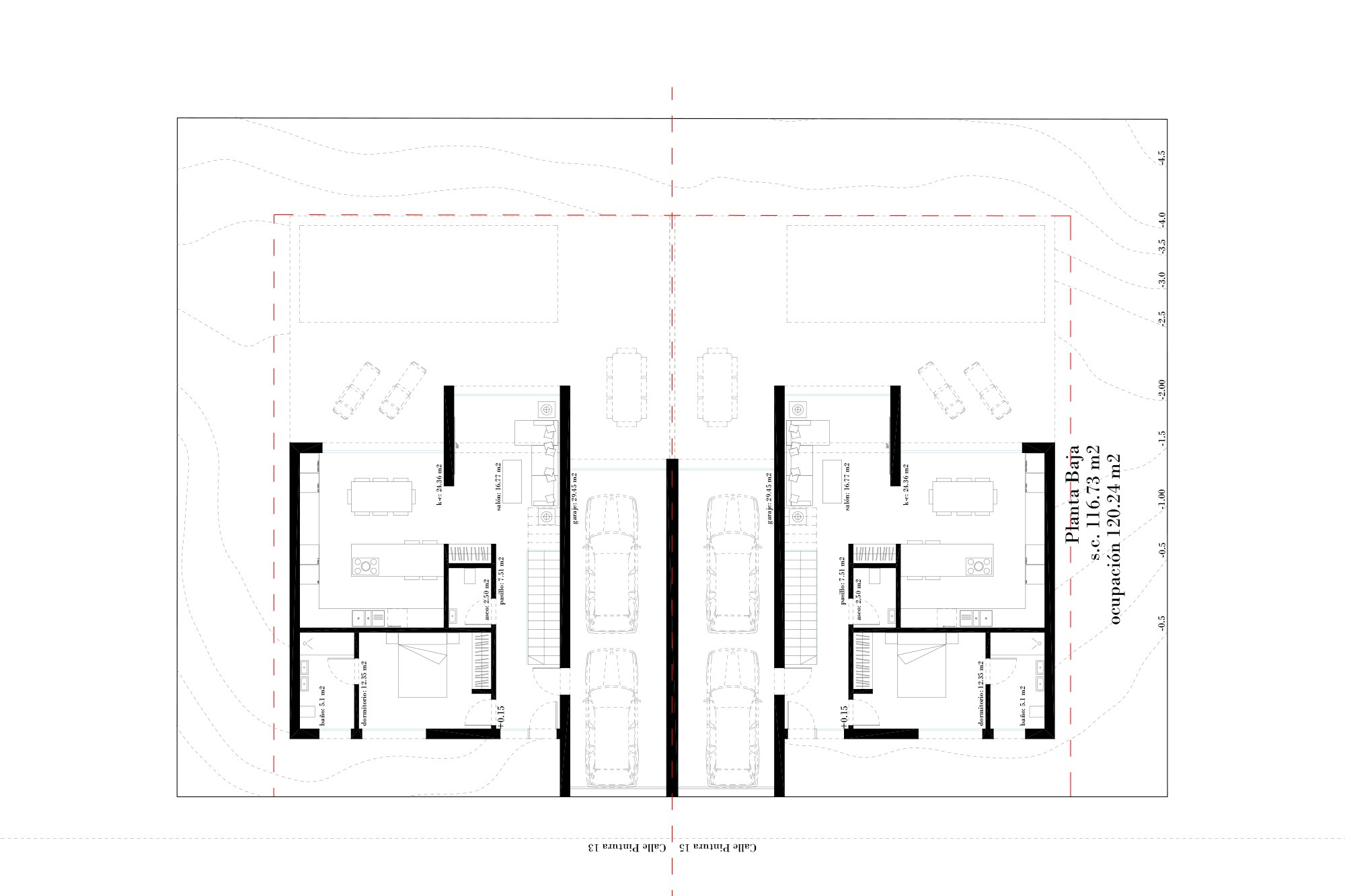
Pinturas 13-15

Viviendas con distribución invertida (de arriba hacia abajo) para adaptarse a la complicada topografía, diseñadas para no desentonar con el entorno siguiendo el planeamiento vigente y las premisas de los clientes finales.

Pinturas 13-15

Viviendas con distribución invertida (de arriba hacia abajo) para adaptarse a la complicada topografía, diseñadas para no desentonar con el entorno siguiendo el planeamiento vigente y las premisas de los clientes finales.

Conjunto de viviendas industrializadas mediante Steel Frame en Guadalix de la Sierra (Madrid)

 

Viviendas con distribución invertida (de arriba hacia abajo) para adaptarse a la complicada topografía, diseñadas para no desentonar con el entorno siguiendo el planeamiento vigente y las premisas de los clientes finales.

Infografías del proyecto

Datos del proyecto

Título del proyecto: Pinturas 13-15
Proyecto: EXarchitects
Estado: Proyecto Básico
Año: 2024-XX
Constructora: : Ecotech House.
Ubicación: Guadalix de la Sierra (Madrid)
Tipología: Conjunto de dos viviendas unifamiliares pareadas
Infografías: EXarchitects

X
Threads
Facebook
LinkedIn
Pinterest
Telegram
WhatsApp